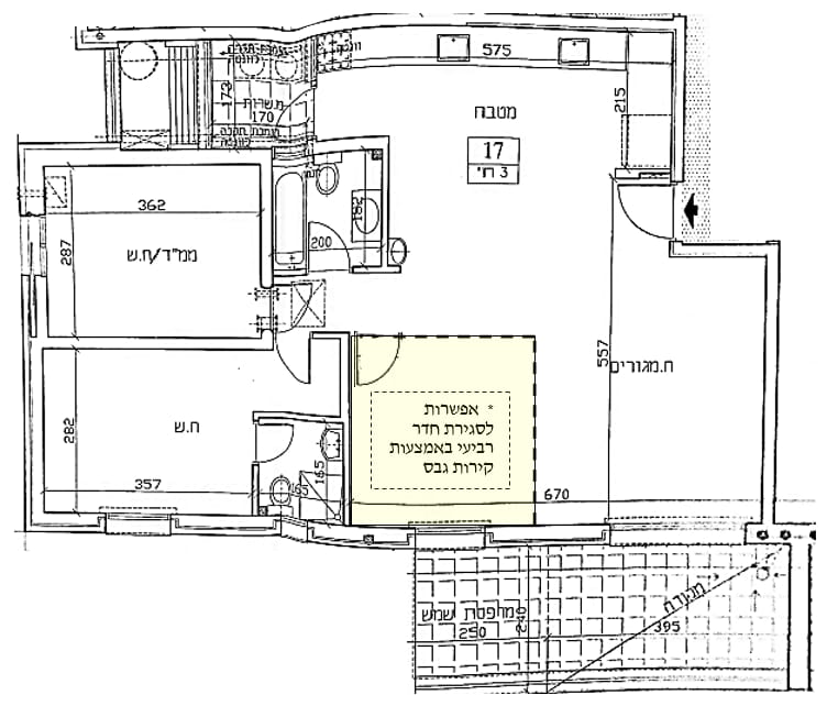
דירת 3 חדרים עם אופציה לחדר נוסף ,מרווחת ביותר!!
94 מ”ר בנוי, סלון גדול במיוחד , אופציה חוקית לסגירת חדר נוסף ע”ח הסלון, קומה 2 , חזית לרחוב ללא היזק ראיה !! מרפסת גדולה 16 מ”ר,
בדירה קיימת יחידת הורים, מחסן וחנייה בטאבו.
דירת 3 חדרים עם אופציה לחדר נוסף ,מרווחת ביותר!!
94 מ”ר בנוי, סלון גדול במיוחד , אופציה חוקית לסגירת חדר נוסף ע”ח הסלון, קומה 2 , חזית לרחוב ללא היזק ראיה !! מרפסת גדולה 16 מ”ר,
בדירה קיימת יחידת הורים, מחסן וחנייה בטאבו.

